Diedesfeld 2025
Umbau ehem. Weingut







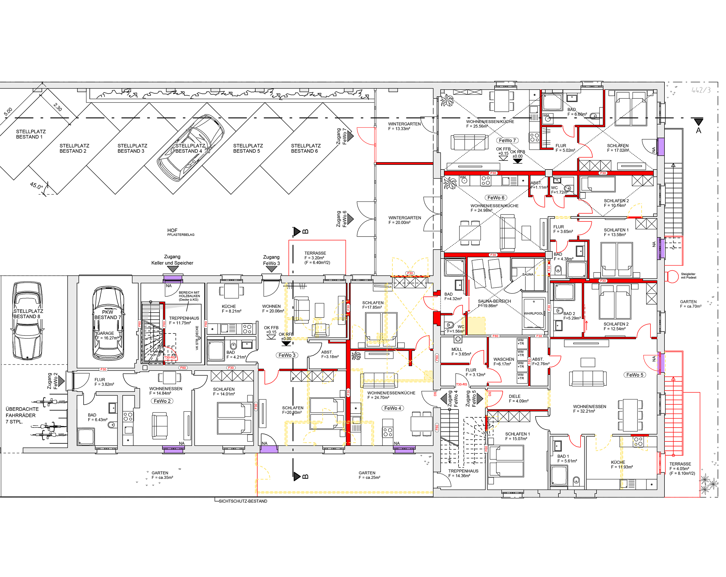
Malerisch eingebettet in die Weinberge liegt mitten im Neustadter Ortsteil Diedesfeld ein historisches Anwesen, das einst als Weingut genutzt wurde. Viele Jahre später wurde das Gebäude von Gourmetgastronomen erfolgreich betrieben. Namen wie „Beckers Gut“ oder „Irori“ waren die Aushängeschilder für das Anwesen. Zwischenzeitlich wurde die ehemalige Betreiberwohnung im Dachgeschoss renoviert, um Gästen ein Zuhause in den Ferien zu bieten. Da dieses Konzept sehr erfolgreich etabliert werden konnte, wurde nach dem Auszug der Sterneküche „Irori“ eine Umstrukturierung des Anwesens in Ferienwohnungen vorgenommen. Ziel war es die historische Gebäudehülle größtenteils zu erhalten und an dieser nur minimale Eingriffe vorzunehmen. Im Inneren wurden insgesamt sieben Ferienwohnungen geschaffen, welche alle unterschiedliche Alleinstellungsmerkmale aufweisen, jedoch auch so entworfen sind, dass ebenfalls dauerhaftes Wohnen möglich ist.

