Lu-Gartenstadt 2017

Umbau Haus K

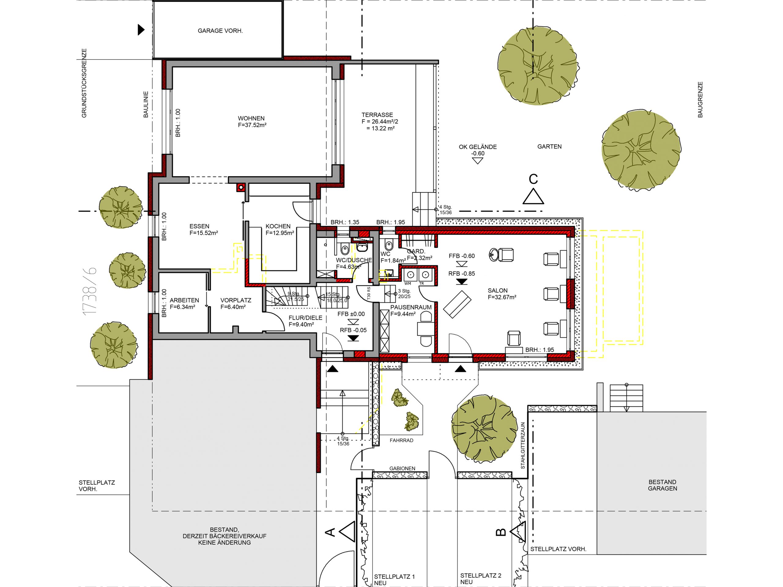
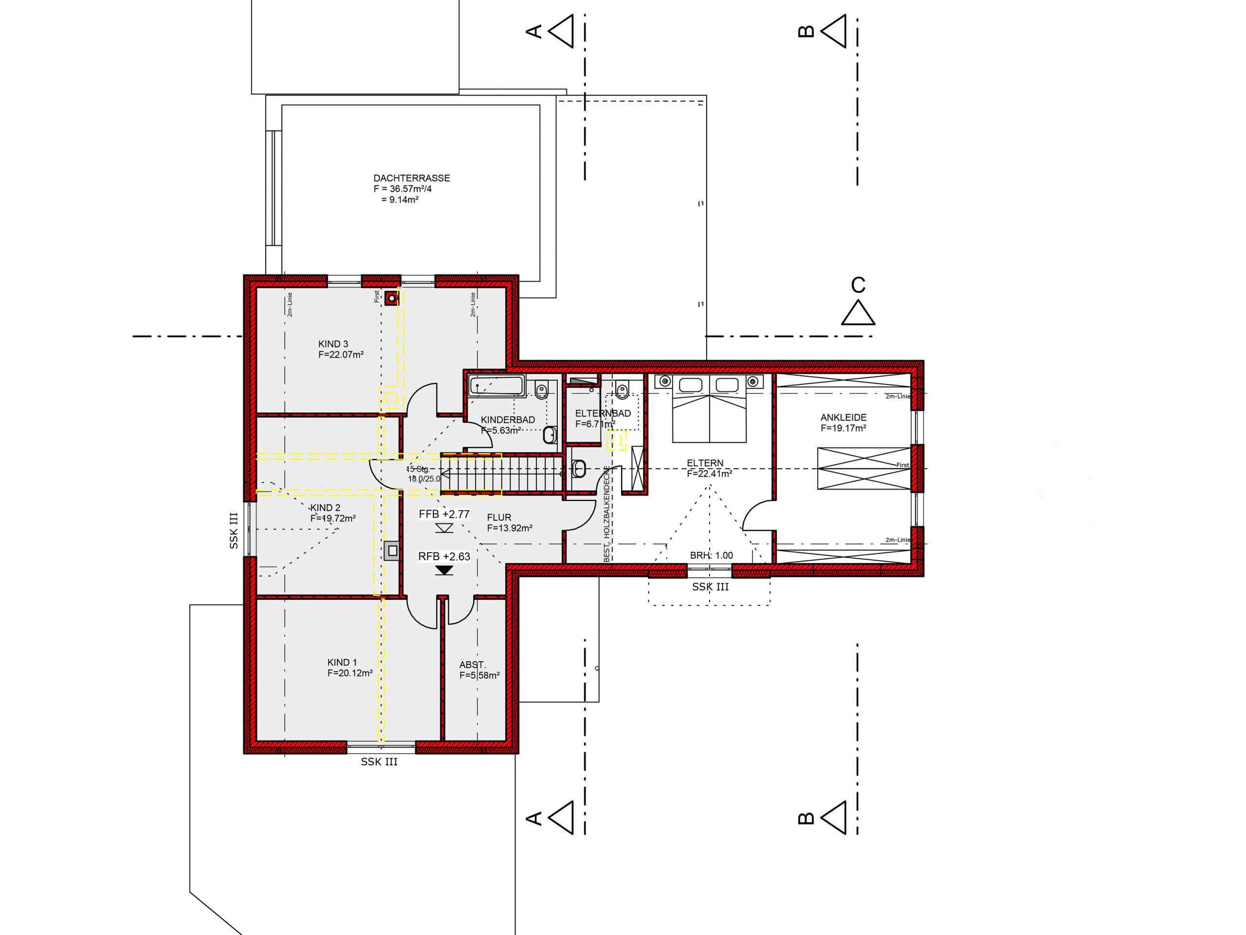
Dieses Bauherrenprojekt sah eine Erweiterung des Bestandsgebäudes vor, in welcher der Friseursalon der Eigentümerin seinen Platz finden sollte. Das Bestandsgebäude wurde dabei zusätzlich aufgestockt sowie umfassend energetisch saniert. Besonderes Augenmerk lag außerdem auf dem Einsatz von Naturmaterialien.