Fußgönnheim 2017

Neubau Haus R

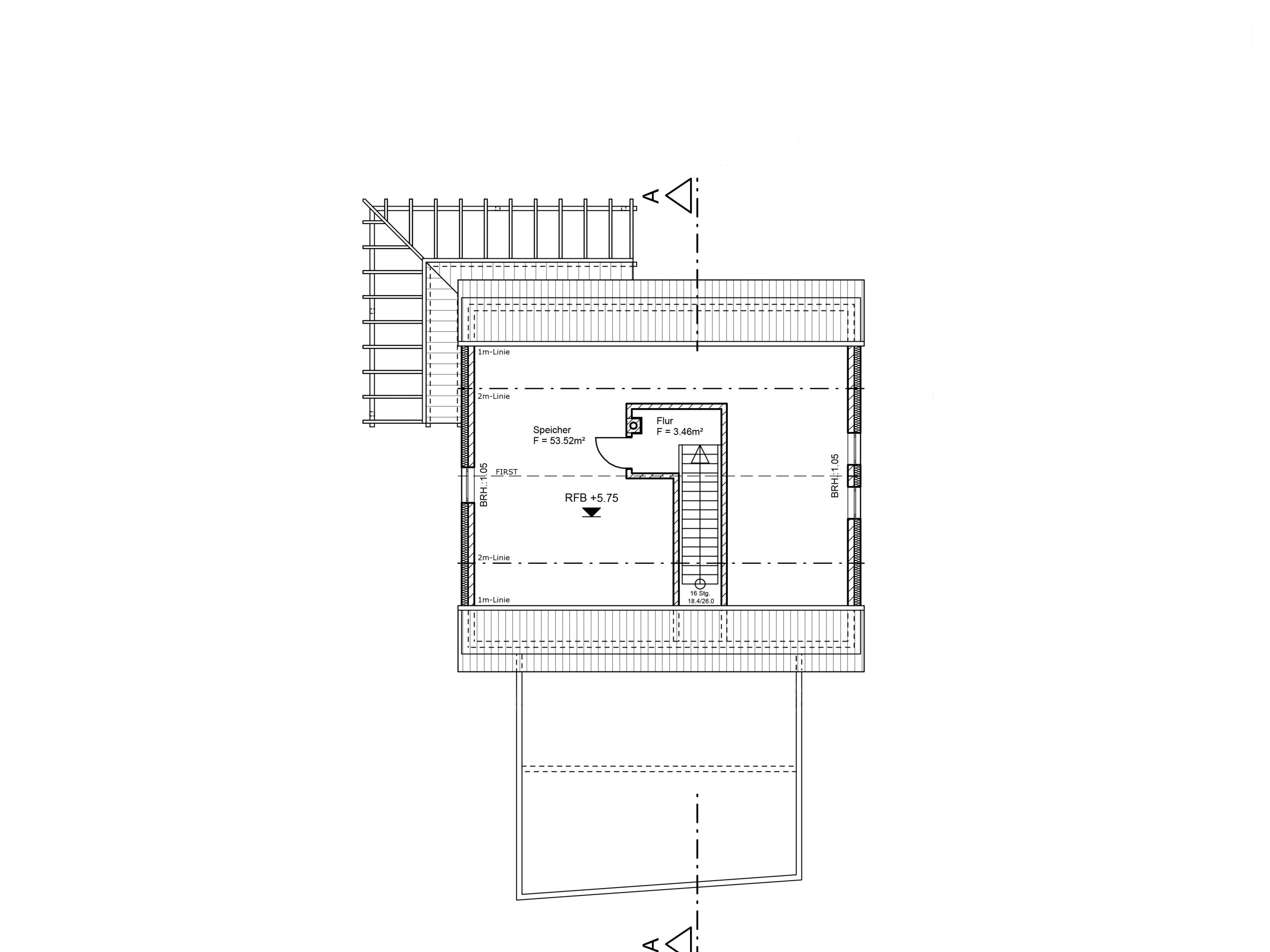
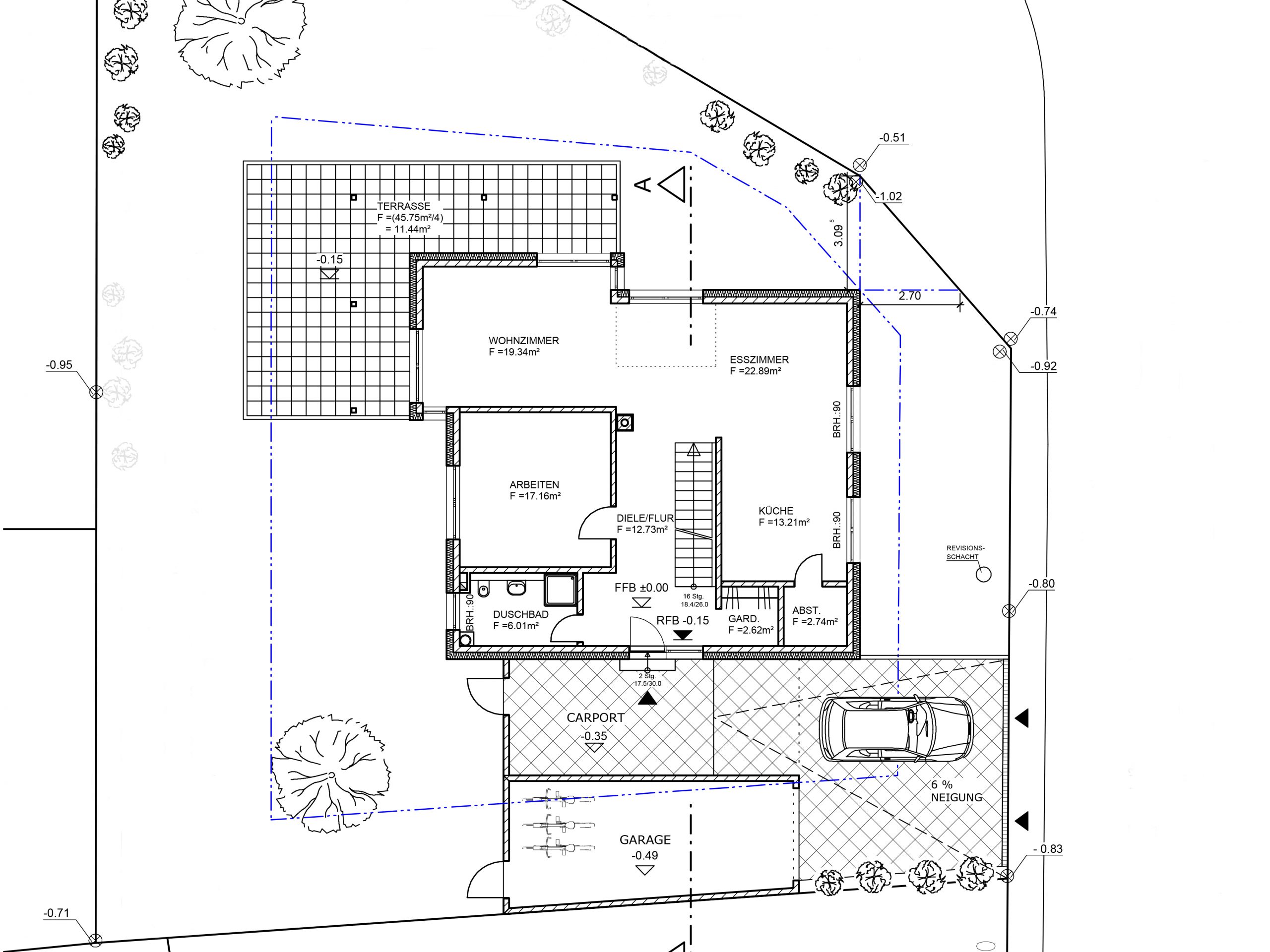
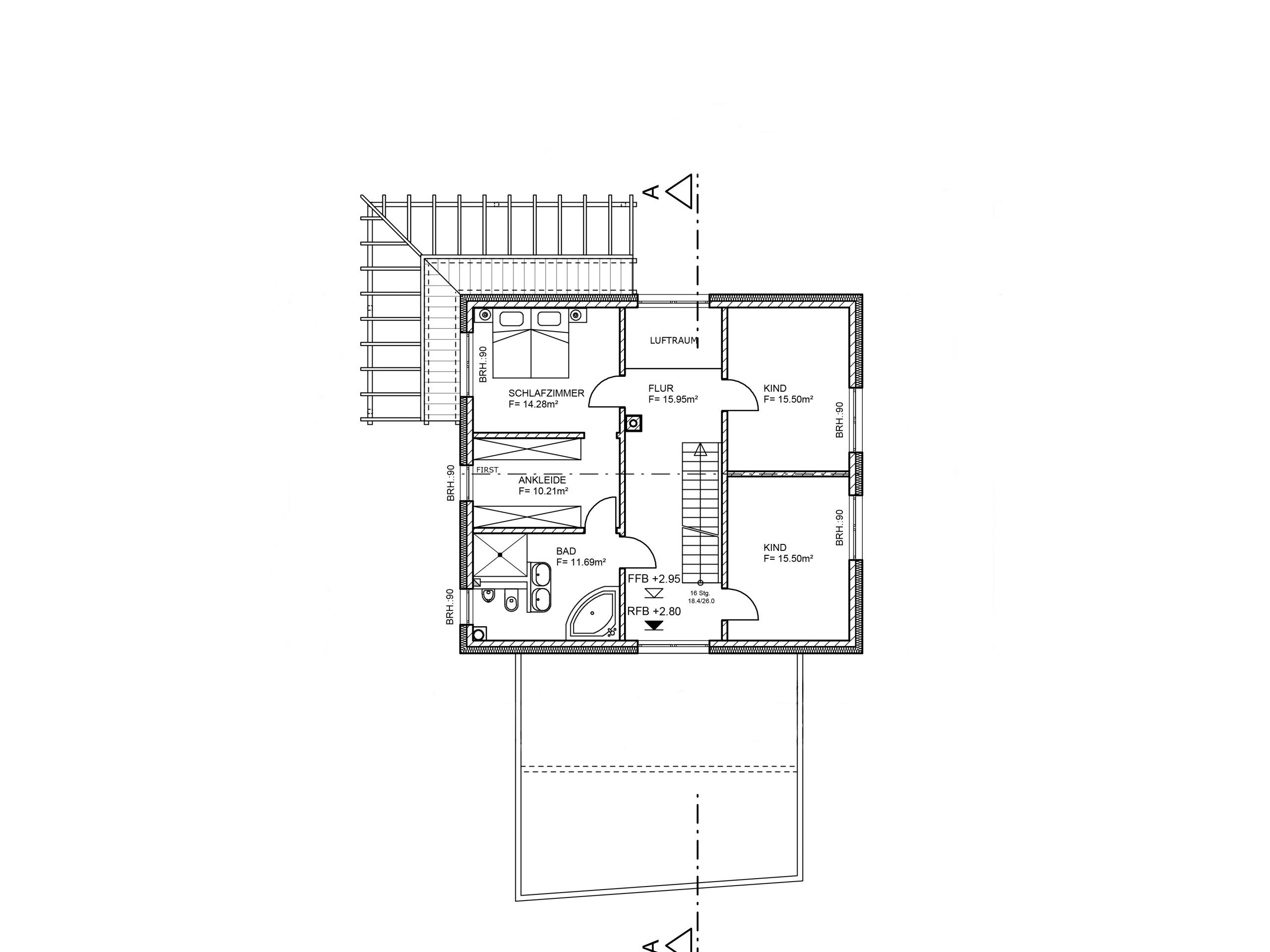
2017 entstand der Neubau dieses Einfamilienhauses in Fußgönnheim. Dabei entstanden zwei unterkellerte Vollgeschosse mit Speicher sowie eine Garage und Carport. Die Grundrisse wurde dabei nach den Bedürfnissen der Bauherren entworfen, besondere Highlights sind hierbei der Luftraum, die einläufige Treppe aus abgewinkelten Stahlrohrrahmen mit Echtholz-Buchestufen und die großzügige Terrasse mit Pergola.