Lu-Friesenheim 2017

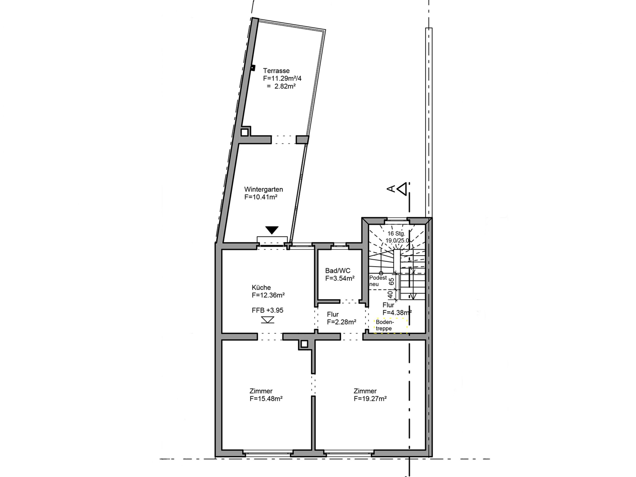
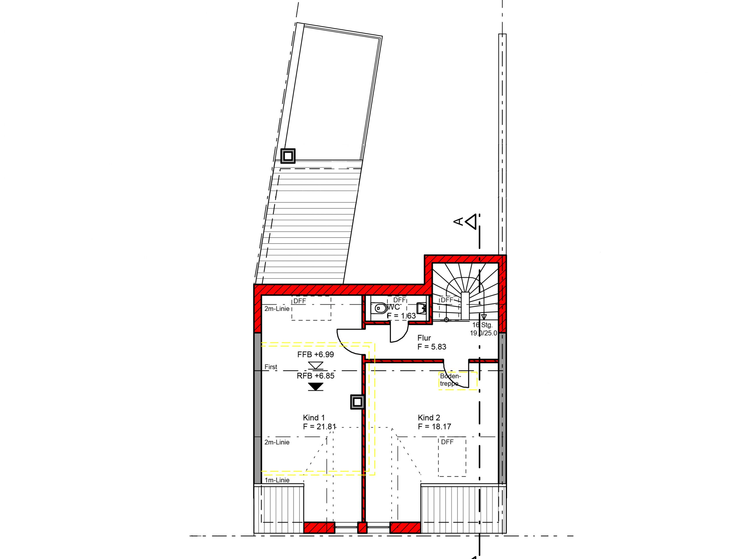
Aufstockung Haus M

Der Bedarf an mehr Wohnfläche wurde mit einer Aufstockung des Dachgeschosses mit Dacherweiterung sowie den Einbau einer neuen Gaube gedeckt. Außerdem wurde die Dachbodenleiter durch eine „richtige“ Treppe ersetzt.